Village of Fingal Reconstruction
The County of Elgin, in partnership with the Township of Southwold, will be upgrading roads and underground services in the Village of Fingal. Construction will begin the week of December 3, 2025 (weather permitting) with substantial completion by December 2027.
What’s Happening?
- New sanitary sewer services (with private property connections) will be installed by the Township of Southwold on:
- Millpark Street
- Fowler Street
- Union Road
- Fingal Line
- Millpark Street
- Road reconstruction on Union Road and Fingal Line will be led by the County of Elgin.
- Both Township and County are also upgrading stormwater systems to support current needs and future growth.
What Will Change?
When complete, the community will see:
- Narrower lanes to encourage slower traffic speeds
- Clearly marked parking bays
- Wider, separated sidewalks
- A signalized intersection at Fingal Line & Union Road
- Street and pedestrian level lighting through town
- New pedestrian crossings (PXO’s)
- Dedicated turning lanes for future development
- Gateway features at village entrances to slow traffic
Who’s Responsible?
- Township of Southwold → sanitary sewers, watermain work, sidewalks, pedestrian amenities, local road work (Millpark & Fowler). For more details visit: Southwold Sanitary Servicing Project
- County of Elgin → Union Road & Fingal Line reconstruction, signalized intersection, PXO crossings, County stormwater works
Project Funding
This project is supported by the Province of Ontario through the Housing-Enabling Water Systems Fund and the Housing-Enabling Core Servicing Stream (HECS). The County has received up to $3.7 million in provincial funding to help deliver these improvements.
Timeline
- September 23: Contract awarded to Bre-Ex Construction Inc.
- December 3, 2025: Construction begins & will continue through 2027
- Some roads may remain gravel over winter, but local access will be maintained at all times
Where is the Project at Now?
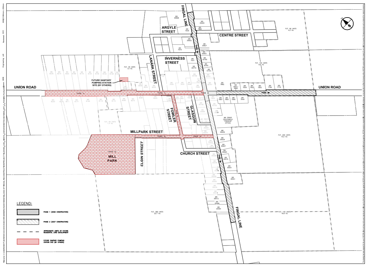
Phase 1A work area is shown in red on the map below, and is expected to take place between December 2025 and May 2026. Construction will focus on Union Road north of Fingal Line, Fowler Street, and Mill (Millpark) Street.
As a result, Fowler Street, Millpark Street and Union Road North of Fingal Line will be closed to through traffic and open to local traffic only. Fingal Line will remain open for the remainder of the season.
Work will begin at the future sanitary pumping station, which is the deepest point of the project, and progress outward through the village.

Get Involved
A Public Information Centre (PIC) Open House was held on September 24, 2025. This drop-in event allowed residents to:
- View project drawings
- Speak directly with Township, County, and consultants
- Ask questions about impacts and timelines
Stay Updated
Sign up for project updates by scrolling down to "Stay Informed". Add your email address and click "Subscribe". It is as easy as a click of a button!
We thank residents and commuters for their patience during this work. Together, the County and Township are investing in safer roads, modern servicing, and infrastructure that will support Fingal for years to come.
The County of Elgin, in partnership with the Township of Southwold, will be upgrading roads and underground services in the Village of Fingal. Construction will begin the week of December 3, 2025 (weather permitting) with substantial completion by December 2027.
What’s Happening?
- New sanitary sewer services (with private property connections) will be installed by the Township of Southwold on:
- Millpark Street
- Fowler Street
- Union Road
- Fingal Line
- Millpark Street
- Road reconstruction on Union Road and Fingal Line will be led by the County of Elgin.
- Both Township and County are also upgrading stormwater systems to support current needs and future growth.
What Will Change?
When complete, the community will see:
- Narrower lanes to encourage slower traffic speeds
- Clearly marked parking bays
- Wider, separated sidewalks
- A signalized intersection at Fingal Line & Union Road
- Street and pedestrian level lighting through town
- New pedestrian crossings (PXO’s)
- Dedicated turning lanes for future development
- Gateway features at village entrances to slow traffic
Who’s Responsible?
- Township of Southwold → sanitary sewers, watermain work, sidewalks, pedestrian amenities, local road work (Millpark & Fowler). For more details visit: Southwold Sanitary Servicing Project
- County of Elgin → Union Road & Fingal Line reconstruction, signalized intersection, PXO crossings, County stormwater works
Project Funding
This project is supported by the Province of Ontario through the Housing-Enabling Water Systems Fund and the Housing-Enabling Core Servicing Stream (HECS). The County has received up to $3.7 million in provincial funding to help deliver these improvements.
Timeline
- September 23: Contract awarded to Bre-Ex Construction Inc.
- December 3, 2025: Construction begins & will continue through 2027
- Some roads may remain gravel over winter, but local access will be maintained at all times
Where is the Project at Now?
Phase 1A work area is shown in red on the map below, and is expected to take place between December 2025 and May 2026. Construction will focus on Union Road north of Fingal Line, Fowler Street, and Mill (Millpark) Street.
As a result, Fowler Street, Millpark Street and Union Road North of Fingal Line will be closed to through traffic and open to local traffic only. Fingal Line will remain open for the remainder of the season.
Work will begin at the future sanitary pumping station, which is the deepest point of the project, and progress outward through the village.

Get Involved
A Public Information Centre (PIC) Open House was held on September 24, 2025. This drop-in event allowed residents to:
- View project drawings
- Speak directly with Township, County, and consultants
- Ask questions about impacts and timelines
Stay Updated
Sign up for project updates by scrolling down to "Stay Informed". Add your email address and click "Subscribe". It is as easy as a click of a button!
We thank residents and commuters for their patience during this work. Together, the County and Township are investing in safer roads, modern servicing, and infrastructure that will support Fingal for years to come.
-
January 9, 2026 - Update
Share January 9, 2026 - Update on Facebook Share January 9, 2026 - Update on Twitter Share January 9, 2026 - Update on Linkedin Email January 9, 2026 - Update linkWe understand there were questions following this week's construction update in the Village of Fingal. The information below provides further clarification and details to help residents plan ahead.
Union Road Closure: January 12th
On Monday, January 12th, residents should expect a full closure of a portion of Union Road as the contractor completes work exiting the sanitary pump station with deep sewer installations. Due to the depth of the excavation, the roadway cannot be safely maintained for one lane of traffic and will be closed to all traffic.- Closure limits: From Lanark Street to north of the pump station
- Detours: Please follow the official detours posted on Municipal Road 511. http://bit.ly/49eqvMc
- Map: See the map below for full closure details

Parking and Access
When sanitary installation in front of your property is taking place vehicular access will be blocked. The Consultant will notify residents beforehand where to park when access isn't permitted. The Contractor will be responsible for maintaining pedestrian access to all properties.School Transportation
Starting on January 12th, the school bus company will resume pick up points at centralized locations. A temporary bus stop has been set up at the corner of Fingal Line and Union Rd.Please check the Parent Portal at www.mybigyellowbus.ca to view your student’s updated transportation information for updated times and detailed instructions of where to wait for the bus.
Thank you for your patience as this work continues.
We understand there were questions following this week's construction update in the Village of Fingal. The information below provides further clarification and details to help residents plan ahead.
Union Road Closure: January 12th
On Monday, January 12th, residents should expect a full closure of a portion of Union Road as the contractor completes work exiting the sanitary pump station with deep sewer installations. Due to the depth of the excavation, the roadway cannot be safely maintained for one lane of traffic and will be closed to all traffic.- Closure limits: From Lanark Street to north of the pump station
- Detours: Please follow the official detours posted on Municipal Road 511. http://bit.ly/49eqvMc
- Map: See the map below for full closure details

Parking and Access
When sanitary installation in front of your property is taking place vehicular access will be blocked. The Consultant will notify residents beforehand where to park when access isn't permitted. The Contractor will be responsible for maintaining pedestrian access to all properties.School Transportation
Starting on January 12th, the school bus company will resume pick up points at centralized locations. A temporary bus stop has been set up at the corner of Fingal Line and Union Rd.Please check the Parent Portal at www.mybigyellowbus.ca to view your student’s updated transportation information for updated times and detailed instructions of where to wait for the bus.
Thank you for your patience as this work continues.
-
January 6, 2026 - Update
Share January 6, 2026 - Update on Facebook Share January 6, 2026 - Update on Twitter Share January 6, 2026 - Update on Linkedin Email January 6, 2026 - Update linkVillage of Fingal Reconstruction Update
Bre-Ex Construction is back on site today, January 6, to continue reconstruction work in the Village of Fingal. Over the next two weeks, residents may notice activity related to the roadways, underground servicing, and pump station work.
Roadway and Underground Work
Crews will be preparing roads and underground services to support future construction. This includes:
- Locating existing underground utilities and completing test holes
- Removing road surfaces in parts of Stage 1
- Grinding and reworking the road base in the remainder of Stage 1 to keep roads driveable
- Excavation work near the Millpark Channel
- Installing new watermain along Millpark Street
Pump Station and Sewer Work
Work will also continue near the pump station area, including:
- Installing silt fencing for environmental protection
- Removing surface materials
- Installing new sanitary sewer infrastructure between the pump station and Union Road (the deepest sewer on the project)
What the Coloured Areas Mean on the Map
- Red areas: Roads will be ground and reworked to allow underground service installation while maintaining access for local traffic.
- Purple areas: Active excavation will be taking place. Expect heavier equipment and possible short-term delays.
- Blue area: A new watermain will be installed using directional drilling to minimize excavation and reduce disruptions.

Local access will be maintained wherever possible. Thank you for your patience as this important infrastructure work continues.
Village of Fingal Reconstruction Update
Bre-Ex Construction is back on site today, January 6, to continue reconstruction work in the Village of Fingal. Over the next two weeks, residents may notice activity related to the roadways, underground servicing, and pump station work.
Roadway and Underground Work
Crews will be preparing roads and underground services to support future construction. This includes:
- Locating existing underground utilities and completing test holes
- Removing road surfaces in parts of Stage 1
- Grinding and reworking the road base in the remainder of Stage 1 to keep roads driveable
- Excavation work near the Millpark Channel
- Installing new watermain along Millpark Street
Pump Station and Sewer Work
Work will also continue near the pump station area, including:
- Installing silt fencing for environmental protection
- Removing surface materials
- Installing new sanitary sewer infrastructure between the pump station and Union Road (the deepest sewer on the project)
What the Coloured Areas Mean on the Map
- Red areas: Roads will be ground and reworked to allow underground service installation while maintaining access for local traffic.
- Purple areas: Active excavation will be taking place. Expect heavier equipment and possible short-term delays.
- Blue area: A new watermain will be installed using directional drilling to minimize excavation and reduce disruptions.

Local access will be maintained wherever possible. Thank you for your patience as this important infrastructure work continues.
-
December 22, 2025 - Update
Share December 22, 2025 - Update on Facebook Share December 22, 2025 - Update on Twitter Share December 22, 2025 - Update on Linkedin Email December 22, 2025 - Update linkWe would like to share an update on construction activities in the Village of Fingal as winter approaches.
Due to forecasted weather conditions over the next few weeks, the contractor will not be proceeding with sanitary works over the holiday break within the public right of way. This decision was made to help maintain access and minimize disruption for residents, businesses, and drivers during the next couple of weeks. Construction activity is expected to substantially resume when weather and ground conditions are more favourable.
In January, Enbridge Gas will be working on Fowler Street to replace an existing gas main. This work will help reduce conflicts with future sanitary servicing and address aging infrastructure. Enbridge’s work is expected to take place between January 5 and January 30.
The contractor is also planning to mobilize in January to complete directional drilling for a new watermain on Millpark Street. This method allows the work to be completed underground with limited surface disruption. Small access excavations will be required, but impacts to the roadway are expected to be minimal.
Please note that Union Road remains closed to through traffic and is open to local traffic only. Drivers are asked to proceed with caution, as there may be some localized construction activity in the area prior to full construction resuming next year. The timing of full construction is pending weather conditions, and any updates will be communicated in advance.
We appreciate your ongoing patience as work on this project continues.We would like to share an update on construction activities in the Village of Fingal as winter approaches.
Due to forecasted weather conditions over the next few weeks, the contractor will not be proceeding with sanitary works over the holiday break within the public right of way. This decision was made to help maintain access and minimize disruption for residents, businesses, and drivers during the next couple of weeks. Construction activity is expected to substantially resume when weather and ground conditions are more favourable.
In January, Enbridge Gas will be working on Fowler Street to replace an existing gas main. This work will help reduce conflicts with future sanitary servicing and address aging infrastructure. Enbridge’s work is expected to take place between January 5 and January 30.
The contractor is also planning to mobilize in January to complete directional drilling for a new watermain on Millpark Street. This method allows the work to be completed underground with limited surface disruption. Small access excavations will be required, but impacts to the roadway are expected to be minimal.
Please note that Union Road remains closed to through traffic and is open to local traffic only. Drivers are asked to proceed with caution, as there may be some localized construction activity in the area prior to full construction resuming next year. The timing of full construction is pending weather conditions, and any updates will be communicated in advance.
We appreciate your ongoing patience as work on this project continues. -
October 31, 2025 - Update
Share October 31, 2025 - Update on Facebook Share October 31, 2025 - Update on Twitter Share October 31, 2025 - Update on Linkedin Email October 31, 2025 - Update linkHappy Halloween, Fingal! As the ghosts and goblins pack away their costumes for another year, crews are getting ready to begin a different kind of transformation, the start of the Village of Fingal Reconstruction Project.
Bre-Ex Construction will begin Stage 1A of this Project the week of November 10th.
Phase 1A work area is shown in red on the map below, and is expected to take place between November 2025 and May 2026. Construction will focus on Union Road north of Fingal Line, Fowler Street, and Mill (Millpark) Street.
As a result, Fowler Street, Millpark Street and Union Road North of Fingal Line will be closed to through traffic and open to local traffic only. Fingal Line will remain open for the remainder of the season.
Work will begin at the future sanitary pumping station, which is the deepest point of the project, and progress outward through the village.

Here’s what residents and drivers can expect during the first week:- Erosion control fencing (a temporary barrier used to prevent soil and sediment from being washed away by rainwater) will be installed to manage runoff within the construction zone.
- Tree protection fencing (temporary fencing placed around trees that will remain) will be set up to keep them safe during construction.
- Heavy equipment such as excavators and trucks will begin arriving on site. Please give crews space and be patient as machinery is unloaded and moved.
- Traffic control measures including signage and barrels will be set up to guide drivers safely through the construction zone.
- A laydown yard (a designated space where materials such as gravel, concrete, and pipe are delivered and stored) will be prepared nearby.
- Crews will pulverize (grind up) the surface of Union Road north of Fingal Line, Fowler Street, and Millpark Street. This will create a temporary gravel-like surface, so please drive slowly and follow posted speed limits to help reduce dust.
When the project is complete, Fingal’s main streets will be safer and more welcoming with new sidewalks separated from the road to make walking easier and safer for everyone. By Halloween 2027, trick-or-treaters will have a smooth, accessible path to go door to door through the village.
Sign up for project updates by scrolling down to “Stay Informed.” Add your email address and click “Subscribe.” It’s as easy as a click of a button!
Happy Halloween, Fingal! As the ghosts and goblins pack away their costumes for another year, crews are getting ready to begin a different kind of transformation, the start of the Village of Fingal Reconstruction Project.
Bre-Ex Construction will begin Stage 1A of this Project the week of November 10th.
Phase 1A work area is shown in red on the map below, and is expected to take place between November 2025 and May 2026. Construction will focus on Union Road north of Fingal Line, Fowler Street, and Mill (Millpark) Street.
As a result, Fowler Street, Millpark Street and Union Road North of Fingal Line will be closed to through traffic and open to local traffic only. Fingal Line will remain open for the remainder of the season.
Work will begin at the future sanitary pumping station, which is the deepest point of the project, and progress outward through the village.

Here’s what residents and drivers can expect during the first week:- Erosion control fencing (a temporary barrier used to prevent soil and sediment from being washed away by rainwater) will be installed to manage runoff within the construction zone.
- Tree protection fencing (temporary fencing placed around trees that will remain) will be set up to keep them safe during construction.
- Heavy equipment such as excavators and trucks will begin arriving on site. Please give crews space and be patient as machinery is unloaded and moved.
- Traffic control measures including signage and barrels will be set up to guide drivers safely through the construction zone.
- A laydown yard (a designated space where materials such as gravel, concrete, and pipe are delivered and stored) will be prepared nearby.
- Crews will pulverize (grind up) the surface of Union Road north of Fingal Line, Fowler Street, and Millpark Street. This will create a temporary gravel-like surface, so please drive slowly and follow posted speed limits to help reduce dust.
When the project is complete, Fingal’s main streets will be safer and more welcoming with new sidewalks separated from the road to make walking easier and safer for everyone. By Halloween 2027, trick-or-treaters will have a smooth, accessible path to go door to door through the village.
Sign up for project updates by scrolling down to “Stay Informed.” Add your email address and click “Subscribe.” It’s as easy as a click of a button!
-
October 20, 2025 - Update
Share October 20, 2025 - Update on Facebook Share October 20, 2025 - Update on Twitter Share October 20, 2025 - Update on Linkedin Email October 20, 2025 - Update link
Dear Fingal Resident,
The Township of Southwold will soon begin major reconstruction work in Fingal. This notice provides important details about the project and how construction may impact you.
Project Details
- Project Name: Village of Fingal Reconstruction
- Location: Fingal Line, Union Road, Fowler Street, and Millpark Street
- Schedule: Tentative start date – November 3rd 2025 (weather permitting)
- Estimated completion: June 2027
- Contractor: Bre-Ex Construction Inc.
Scope of Work:
- Localized watermain replacement
- Storm sewer and storm outlet construction
- Sanitary sewer installation (new municipal sanitary system)
- Curb and gutter installation
- Sidewalk installation and improvements
- Pedestrian Crossovers
- Landscape features
- Downtown improvements
- Full road reconstruction and restoration
Important Information for Residents
Sanitary & Storm Connections:As part of this project, all properties located directly along the reconstruction limits (Fingal Line, Union Road, Fowler Street, and Millpark Street) will receive a sanitary service stub installed to the property line and capped. This will allow for future connection to the new municipal sanitary system once it becomes active.
Property owners within the construction limits who wish to receive a storm service stub must contact the Township by October 31, 2025 to confirm participation. It is not too late to sign up for a storm connection if your property is included within the reconstruction area.
How Construction May Impact You
- Traffic: Roads in Fingal will be closed to through traffic at certain times. Local traffic, including business traffic, emergency services, and municipal vehicles will still have access.
- Property Access: Driveway access will be maintained as much as possible. However, there will be times when access will be temporarily unavailable. In advance of these instances, you will receive notice and direction as to where to park.
- Water Service: Water will remain available, but short service disruptions may occur when connections are made. Some properties may also be placed on temporary service. You will be notified in advance of any changes.
- Sanitary and Storm Services: New municipal connections will be installed by the Township of Southwold. Contractors will coordinate directly with property owners as this work takes place.
- Vibration: Construction equipment may cause vibrations. Please protect fragile or valuable items inside your home.
- Landscaping and Property Items: Please remove decorations, plants, sprinklers, fencing, and other personal items from Township or County property that you wish to keep. Work will take place up to the property line, and the Township and County are not responsible for items left on public property.
- Sod: New sod will be maintained and watered by the contractor for 60 days after planting. After this period, maintenance responsibilities revert back to preconstruction conditions.
- Garbage and Recycling: Contractors will collect your garbage and recycling on pickup days by moving containers to a location that can be accessed by collection vehicles. Containers will be returned afterward. Please label your containers with your municipal address.
- Safety: For your safety, please avoid the construction area and keep a safe distance from vehicles and equipment.
- Mail Delivery: Canada Post has been consulted throughout the project design phase. Temporary community mailboxes will be installed, and directions along with access information will be communicated by Canada Post.
- Internet / Phone: Should you lose internet or phone service, please contact your service provider. Should the Contractor come in contact with telecommunications lines they will notify the service provider, but additional repairs may be required on private property which may fall under a separate department.
Social Media Updates
For updates and information regarding the Village of Fingal Reconstruction, please visit: https://engageelgin.ca/fingalSincerely,
Aaron VanOorspronk, L.E.T.
Director of Infrastructure and Development Services
Township of Southwold
Tel: 519-769-2010 | Email: development@southwold.ca
35663 Fingal Line, Fingal, Ontario N0L 1K0Dear Fingal Resident,
The Township of Southwold will soon begin major reconstruction work in Fingal. This notice provides important details about the project and how construction may impact you.
Project Details
- Project Name: Village of Fingal Reconstruction
- Location: Fingal Line, Union Road, Fowler Street, and Millpark Street
- Schedule: Tentative start date – November 3rd 2025 (weather permitting)
- Estimated completion: June 2027
- Contractor: Bre-Ex Construction Inc.
Scope of Work:
- Localized watermain replacement
- Storm sewer and storm outlet construction
- Sanitary sewer installation (new municipal sanitary system)
- Curb and gutter installation
- Sidewalk installation and improvements
- Pedestrian Crossovers
- Landscape features
- Downtown improvements
- Full road reconstruction and restoration
Important Information for Residents
Sanitary & Storm Connections:As part of this project, all properties located directly along the reconstruction limits (Fingal Line, Union Road, Fowler Street, and Millpark Street) will receive a sanitary service stub installed to the property line and capped. This will allow for future connection to the new municipal sanitary system once it becomes active.
Property owners within the construction limits who wish to receive a storm service stub must contact the Township by October 31, 2025 to confirm participation. It is not too late to sign up for a storm connection if your property is included within the reconstruction area.
How Construction May Impact You
- Traffic: Roads in Fingal will be closed to through traffic at certain times. Local traffic, including business traffic, emergency services, and municipal vehicles will still have access.
- Property Access: Driveway access will be maintained as much as possible. However, there will be times when access will be temporarily unavailable. In advance of these instances, you will receive notice and direction as to where to park.
- Water Service: Water will remain available, but short service disruptions may occur when connections are made. Some properties may also be placed on temporary service. You will be notified in advance of any changes.
- Sanitary and Storm Services: New municipal connections will be installed by the Township of Southwold. Contractors will coordinate directly with property owners as this work takes place.
- Vibration: Construction equipment may cause vibrations. Please protect fragile or valuable items inside your home.
- Landscaping and Property Items: Please remove decorations, plants, sprinklers, fencing, and other personal items from Township or County property that you wish to keep. Work will take place up to the property line, and the Township and County are not responsible for items left on public property.
- Sod: New sod will be maintained and watered by the contractor for 60 days after planting. After this period, maintenance responsibilities revert back to preconstruction conditions.
- Garbage and Recycling: Contractors will collect your garbage and recycling on pickup days by moving containers to a location that can be accessed by collection vehicles. Containers will be returned afterward. Please label your containers with your municipal address.
- Safety: For your safety, please avoid the construction area and keep a safe distance from vehicles and equipment.
- Mail Delivery: Canada Post has been consulted throughout the project design phase. Temporary community mailboxes will be installed, and directions along with access information will be communicated by Canada Post.
- Internet / Phone: Should you lose internet or phone service, please contact your service provider. Should the Contractor come in contact with telecommunications lines they will notify the service provider, but additional repairs may be required on private property which may fall under a separate department.
Social Media Updates
For updates and information regarding the Village of Fingal Reconstruction, please visit: https://engageelgin.ca/fingalSincerely,
Aaron VanOorspronk, L.E.T.
Director of Infrastructure and Development Services
Township of Southwold
Tel: 519-769-2010 | Email: development@southwold.ca
35663 Fingal Line, Fingal, Ontario N0L 1K0 -
September 26, 2025 - Update
Share September 26, 2025 - Update on Facebook Share September 26, 2025 - Update on Twitter Share September 26, 2025 - Update on Linkedin Email September 26, 2025 - Update linkListening to Your Feedback: Refinements to the Village of Fingal Reconstruction Design
Thank you to everyone who attended the Public Information Centre on September 24. Nearly 80 people came out to share their input, and your feedback has been incredibly valuable in helping shape this project.One of the main concerns we heard was about ensuring the road remains usable for large farm equipment. We understand how important this is for local farmers and for keeping daily operations running smoothly. Farming is at the heart of this community, and your ability to move equipment safely is essential.To address this, the design team is making changes. While the roads are being narrowed to help calm traffic and make the village safer for everyone, the plan now includes strategically placed wider sections, or parking bays, that will allow large farm equipment to move through when needed. These areas will create space for vehicles to pull over temporarily, so equipment can pass safely while still keeping the village roads designed for slower, safer traffic overall.The updated drawings with these changes are being prepared and will be shared on the project website as soon as they are ready.We truly appreciate everyone’s input and are committed to making sure this project works for the whole community both today and in the years to come.Listening to Your Feedback: Refinements to the Village of Fingal Reconstruction Design
Thank you to everyone who attended the Public Information Centre on September 24. Nearly 80 people came out to share their input, and your feedback has been incredibly valuable in helping shape this project.One of the main concerns we heard was about ensuring the road remains usable for large farm equipment. We understand how important this is for local farmers and for keeping daily operations running smoothly. Farming is at the heart of this community, and your ability to move equipment safely is essential.To address this, the design team is making changes. While the roads are being narrowed to help calm traffic and make the village safer for everyone, the plan now includes strategically placed wider sections, or parking bays, that will allow large farm equipment to move through when needed. These areas will create space for vehicles to pull over temporarily, so equipment can pass safely while still keeping the village roads designed for slower, safer traffic overall.The updated drawings with these changes are being prepared and will be shared on the project website as soon as they are ready.We truly appreciate everyone’s input and are committed to making sure this project works for the whole community both today and in the years to come. -
September 23, 2025 Update
Share September 23, 2025 Update on Facebook Share September 23, 2025 Update on Twitter Share September 23, 2025 Update on Linkedin Email September 23, 2025 Update linkElgin County is pleased to share that at its Regular Meeting of County Council on September 23, 2025, Bre-Ex Construction Inc. was awarded the contract for the Village of Fingal Reconstruction Project (Tender No. 2025-T32) at a total value of $18,985,580.29. This amount includes both Township and County costs to deliver the full project.
Bre-Ex has provided a proposed work plan, and Township staff have prepared an illustrated map of Fingal highlighting where the major works are planned. Please note that this schedule is tentative and subject to change based on weather and winter conditions.

📍 Public Information Centre (PIC)
We invite all residents and commuters to attend an informal drop-in Public Information Centre tomorrow:Date: September 24, 2025
Time: 5:00 – 7:30 p.m.
Location: Township of Southwold Offices
Come view the project drawings, speak with Township and County staff, and learn more about the improvements coming to Fingal.
Stay UpdatedSign up for project updates by scrolling down to “Stay Informed.” Add your email address and click “Subscribe.” It’s as easy as a click of a button!
Elgin County is pleased to share that at its Regular Meeting of County Council on September 23, 2025, Bre-Ex Construction Inc. was awarded the contract for the Village of Fingal Reconstruction Project (Tender No. 2025-T32) at a total value of $18,985,580.29. This amount includes both Township and County costs to deliver the full project.
Bre-Ex has provided a proposed work plan, and Township staff have prepared an illustrated map of Fingal highlighting where the major works are planned. Please note that this schedule is tentative and subject to change based on weather and winter conditions.

📍 Public Information Centre (PIC)
We invite all residents and commuters to attend an informal drop-in Public Information Centre tomorrow:Date: September 24, 2025
Time: 5:00 – 7:30 p.m.
Location: Township of Southwold Offices
Come view the project drawings, speak with Township and County staff, and learn more about the improvements coming to Fingal.
Stay UpdatedSign up for project updates by scrolling down to “Stay Informed.” Add your email address and click “Subscribe.” It’s as easy as a click of a button!
Follow Project
Documents
Construction Schedule
Who's Listening
-
Manager of Roads and Asset Management
Email aparker@elgin.ca -
AV
Email development@southwold.ca